



























Vanaf voorjaar 2026 kan het werkelijkheid worden: jouw eigen Klapkot aan zee, op de Klepperstee. Klapkot.nl ontwikkelt en bouwt (vakantie)woningen met een innovatieve benadering van ruimte, mobiliteit en duurzaamheid. In Nederland ontworpen en geproduceerd. Compact van formaat, maar verrassend ruim door de slimme indeling. In het voorjaar van 2026 worden op 4 locaties op het park deze unieke cabins gerealiseerd, namelijk op Kievit 226, Kievit 242, Grote Stern 620 en Grote Stern 616.
Klapkot is er voor mensen die op zoek zijn naar meer luxe en comfort dan een standaard camper of caravan. Voor mensen bij wie het bestaande aanbod niet aansluit bij hun interieursmaak of de gewenste indeling en leefruimte.
Uitstraling
Dit Klapkot is speciaal ontworpen voor de Klepperstee. De gevels zijn volledig afgewerkt met thermisch gemodificeerd Scandinavisch hout: duurzaam, stevig en onderhoudsarm. Het Klapkot heeft veel ramen voor een sterk buitengevoel. De kozijnen zijn uitgevoerd in massief Western Red Cedarhout met HR++ beglazing.
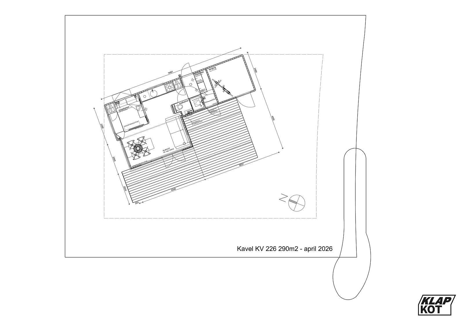
Indeling
Dankzij de L-vorm ontstaat ongeveer 24,0 m² leefruimte, ideaal voor meerdere personen die samen willen genieten. Daarnaast is er een berging in dezelfde stijl als het Klapkot van 2,5 × 2,5 meter.
Het Klapkot beschikt over een comfortabele bedstee (vanaf 2 zijden benaderbaar voor twee personen en een stapelbed. Totaal dus geschikt voor vier personen. Geen smalle trappetjes of aparte slaapverdiepingen, maar alles gelijkvloers. De uitstraling is warm en modern, met houtafwerking, ronde hoeken en een vinyl vloer in visgraatmotief. Het Klapkot wordt compleet opgeleverd, inclusief vaste verlichting, rolgordijnen en gordijnen, zodat het direct klaar is voor gebruik.
In het Klapkot kook je zoals je thuis gewend bent. De keuken is uitgevoerd met een Terracotta Technical Matt werkblad: stijlvol, kras- en hittebestendig. Je vindt hier een koelkast, kraan, spoelbak, vierpits inductiekookplaat en een afzuigkap.
De badkamer is volledig uitgerust met een volwaardige douche, toilet, wastafel en een spiegel met geïntegreerde infraroodverwarming. De wanden hebben een rustige, tijdloze betonlook en de badkamer wordt aangesloten op water en riool. Het Klapkot is comfortabel in elk seizoen. Vloerverwarming zorgt voor warmte in de winter, terwijl de split airconditioning zowel kan koelen als verwarmen. Bij Klapkot houden we van insecten, maar liever buiten. Daarom zijn alle ramen in de keuken en bedstee voorzien van insectenhorren.
Tuin
Door het vele glas loopt binnen en buiten in elkaar over. En dat komt volledig tot zijn recht op het mooie park. Jouw Klapkot beschikt over een eigen vlonder van maar liefst 25 m², gemaakt van Bilinga hout. Wil je de vlonder uitbreiden met een veranda? Dat maken we graag op aanvraag. De vlonder heeft een gunstige zonligging bij alle kavels.
Interesse?
Neem een kijkje op de site en reageer gauw via klapmet@klapkot.nl.
Heb je vragen over de ontwikkelingen op het park? Mail dan naar owner@klepperstee.com
| Status | Nieuw |
|---|---|
| Aantal slaapkamers | 2 |
| Voor aantal personen | 4 |
| Bouwjaar | 2026 |
| Woonoppervlakte | 24 m2 |
| Vakantiewoning | € 124.950,- |
We gebruiken cookies voor een optimale gebruikservaring, om gepersonaliseerde inhoud te bieden en ons verkeer te analyseren. Ook delen we informatie over uw gebruik van onze site met onze partners voor social media, adverteren en analyse. Deze partners kunnen deze gegevens combineren met andere informatie die u aan ze heeft verstrekt of die ze hebben verzameld op basis van uw gebruik van hun diensten. Google maakt hier gebruik van, waarbij de cookies gebruikt worden voor gepersonaliseerde advertenties. Bekijk voor meer informatie ons privacybeleid.
